
【中央区・瓦町】カフェ開業にぴったりの居抜き物件
こんにちは、カフェ好きのみなさん!
☆ようこそUKブログへ☆

大阪の本町で夢のカフェを開業したいと思っている方に、
見逃せない物件を紹介します。
駅近、好立地、そして居抜き!まさに、
カフェオーナーにとってのパラダイスがここにあります。
こんにちは、カフェ好きのみなさん!
☆ようこそUKブログへ☆

大阪の本町で夢のカフェを開業したいと思っている方に、
見逃せない物件を紹介します。
駅近、好立地、そして居抜き!まさに、
カフェオーナーにとってのパラダイスがここにあります。
夢のカフェライフはここからスタート!

場所はどこ?
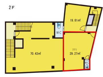
大阪市中央区瓦町4丁目5-4にある「マスザキヤ瓦町ビル201号室」。
なんと、本町駅から徒歩わずか4分!御堂筋線、四つ橋線、
中央線が使えるので、どこへ行くにもとっても便利。
通勤する人々の流れが途絶えないこのエリアで、
あなたのカフェも大注目間違いなし。

お財布に優しい条件
賃料: 月々180,000円(税別)。
これ、意外とリーズナブルです。
しかも共益費も賃料に含まれているので、
追加の費用を気にする必要はなし!
初期費用: 敷金と礼金はそれぞれ198,000円。
そして鍵交換代は25,000円(税別)。
スタートアップにかかる費用もクリアにわかるので、
計画も立てやすいですね。

広さはどのくらい?
専有面積は29.27㎡(8.85坪)。
こぢんまりとした空間ですが、
その分アットホームな雰囲気を作りやすいのが魅力。
小さな空間でのびのびとしたカフェタイムを演出できます。

場所はどこ?
大阪市中央区瓦町4丁目5-4にある「マスザキヤ瓦町ビル201号室」。
なんと、本町駅から徒歩わずか4分!御堂筋線、四つ橋線、
中央線が使えるので、どこへ行くにもとっても便利。
通勤する人々の流れが途絶えないこのエリアで、
あなたのカフェも大注目間違いなし。

お財布に優しい条件
賃料: 月々180,000円(税別)。
これ、意外とリーズナブルです。
しかも共益費も賃料に含まれているので、
追加の費用を気にする必要はなし!
初期費用: 敷金と礼金はそれぞれ198,000円。
そして鍵交換代は25,000円(税別)。
スタートアップにかかる費用もクリアにわかるので、
計画も立てやすいですね。

広さはどのくらい?
専有面積は29.27㎡(8.85坪)。
こぢんまりとした空間ですが、
その分アットホームな雰囲気を作りやすいのが魅力。
小さな空間でのびのびとしたカフェタイムを演出できます。

なぜこの物件が素晴らしいのか?
1. 居抜き物件だから初期投資が少ない!
カフェの設備がすでに整っているから、
面倒な準備は不要!すぐに営業を開始できます。
開業までのステップが短いのも嬉しいポイント。

2. 駅近で集客力抜群!
駅から近いので、毎日多くの人が通り過ぎます。
忙しいビジネスマンがふらっと立ち寄るのに最適。
ランチタイムや仕事帰りにちょっと一息つきたい人たちにとって、
あなたのカフェがオアシスになるかも!

3. 鉄骨造のしっかりとした建物
4階建ての2階部分に位置し、安心の鉄骨造。
建物自体もしっかりしているので、
長期的に安心して営業できます。

4. 契約期間は5年間の定期借家契約
5年間の定期借家契約なので、
安定した期間でのビジネスプランが立てられます。
契約満了時には更新がないので、
その間に自分のカフェブランドをしっかりと築き上げましょう。
最後に
「カフェを開くならここ!」と思ったあなた。
早速、不動産会社に問い合わせてみましょう。
内覧もお早めに。見れば見るほど魅力が増すこと間違いなしです。
あなたの夢のカフェライフがここから始まるかもしれません。
心躍る一歩を踏み出してみませんか?
さあ、マスザキヤ瓦町ビル201号室で、
素敵なカフェライフを始めましょう!
それでは、次回も楽しい物件紹介をお楽しみに!
ヽ(*'0'*)ツヽ(*'0'*)ツヽ(*'0'*)ツ
それでは、次回も楽しい物件紹介をお楽しみに!
■□■□■□■□■□■□■□■□■□■
LINE公式アカウント
@096vkmpx
からのお問い合わせも受付けてます(°∀°)b
お友達登録してネヘ(゚∀゚*)ノ

YouTubeもチェックしてね✨
お問い合わせお待ちしておりますm(__)m
