
【大阪・西天満】法曹街の隠や家!老松小路 B号で、夢のビジネススタート!
皆さん、こんにちは☺
☆ようこそUKブログへ☆
今日は大阪市北区西天満3丁目の「老松小路 B号室」をご紹介!
ここはただの物件ちゃいます!

弁護士さんや司法書士さんがいっぱい集まるエリアで、
ハイクラスな人々が行き交う「大人の街」の中心地。
そんな場所で、飲食店を始めるチャンスがやってきました!

●ええとこポイント●
場所が最高やで!
御堂筋線「淀屋橋駅」から歩いて7分!
これ、都会の通勤にはピッタリ。
しかも、周りは法律事務所やオフィスがズラリ。
昼間はビジネスマン、夜はちょっとエエ感じのお客さんが
流れてくるポテンシャルMAXなエリアやで。
居抜きで即スタート!
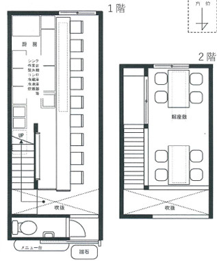
1階にはカウンター、2階は8席のテーブル席完備。
どんな業態でもスタートしやすい「飲食店居抜き」物件。
平成23年にリフォーム済みで、ええ感じの雰囲気がそのまんま使えまっせ!
広さと価格のバランス◎
専有面積は34.44㎡で、ちょうど手頃なサイズ感。
賃料は25万円(税別)。
保証金は3ヶ月分必要やけど、敷金・礼金はゼロや!
初期費用が抑えられるのは嬉しいポイントやな~。
場所が最高やで!
御堂筋線「淀屋橋駅」から歩いて7分!
これ、都会の通勤にはピッタリ。
しかも、周りは法律事務所やオフィスがズラリ。
昼間はビジネスマン、夜はちょっとエエ感じのお客さんが
流れてくるポテンシャルMAXなエリアやで。
居抜きで即スタート!
1階にはカウンター、2階は8席のテーブル席完備。
どんな業態でもスタートしやすい「飲食店居抜き」物件。
平成23年にリフォーム済みで、ええ感じの雰囲気がそのまんま使えまっせ!
広さと価格のバランス◎
専有面積は34.44㎡で、ちょうど手頃なサイズ感。
賃料は25万円(税別)。
保証金は3ヶ月分必要やけど、敷金・礼金はゼロや!
初期費用が抑えられるのは嬉しいポイントやな~。


●こんな方にオススメ!●
法曹関係の方をターゲットに
西天満は、法律事務所がずら~っと並ぶ街。
昼はランチ、夜は一杯の需要もあり、
上品で落ち着いたお客様に喜ばれること間違いなし!
小規模カフェやワインバー
カウンターとテーブル席の絶妙な広さが、
オシャレでこだわりのある空間作りにピッタリ。
大人向けの落ち着いたお店に!
お寿司や創作料理のお店にも
ちょっと特別感のある空間を作りたい料理人さん!
法曹界の方々が通いたくなる隠れ家的なお店が作れるかも?


●お問い合わせはお早めに!●
競争率高そうなこのエリア、見逃したら後悔必至やで!
早めのお問い合わせをお待ちしております♪
LINE公式アカウント
@096vkmpx
からのお問い合わせも受付けてます(°∀°)b
お友達登録してネヘ(゚∀゚*)ノ

YouTubeもチェックしてね✨
お問い合わせお待ちしておりますm(__)m
