
【北区曽根崎】 ZIZIお初天神 - 新築店舗の魅力を探る
みなさん、こんにちは!
ようこそUKブログへ★

今日は大阪のおしゃれな新築店舗「ZIZIお初天神」をご紹介します♪
この物件、最高にワクワクさせてくれる要素がいっぱい詰まっているんですよ!

まず、場所からスタート!
大阪市北区曽根崎に位置しているんですが、アクセス抜群♪
大阪メトロ谷町線「東梅田」駅からは徒歩4分、
JR東西線「北新地」駅からはたったの6分♪
どこからでもラクラクアクセス可能です!

そして、この建物自体がすごい♪
鉄骨造りの7階建て♪高さもあり、スタイリッシュさも抜群♪
そして、驚きの新築物件!
築年数は令和3年4月と、まさにピカピカの新品です♪
内部もまだまだ新しいので、清潔感がばっちりです♪

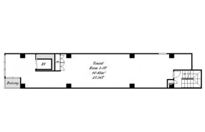
さらに、この物件は1フロア1テナント♪
プライバシーもしっかり守られています♪
そして、ここがポイント!全階で重飲食が可能なんです♪
どんな料理もここで輝けるチャンス!

賃料についても気になりますよね♪
5階、6階、7階の空室はなんと、
専有面積90.45㎡の広々としたスペースが広がっており、
賃料は684,000円で共益費込み♪
しかも、敷金は6ヶ月で、
礼金はいらないんです♪コスパ最高!

「ZIZIお初天神」の周りは、お初天神の人気エリア♪
お客様がたくさん訪れることが期待されます♪
新しいビジネスのチャンスが待っていること間違いなし!
大阪での新たな冒険を始めるチャンスがここにあります♪
この新築店舗「ZIZIお初天神」は、夢をかなえるためのスタート地点♪



詳細や内覧希望など、お気軽にお問い合わせください★
ヽ(*'0'*)ツヽ(*'0'*)ツヽ(*'0'*)ツ
■□■□■□■□■□■□■□■□■□■□■□■□■□■□■□
LINE公式アカウント
@096vkmpx からのお問い合わせも受付けてます(°∀°)b
お友達登録してネヘ(゚∀゚*)ノ

YouTubeもチェックしてね✨
お問い合わせお待ちしておりますm(__)m
